Objektart
Adresse
Objektdaten
Informationen
Ausstattung
Details
Hier im Link ein Einblick: https://my.matterport.com/show/?m=pMkEyu6AVDD
Diese vielseitig nutzbare Gewerbefläche in der 1. Etage bietet optimale Voraussetzungen für eine Praxis, Büro etc. Die Einheit ist bequem über einen Fahrstuhl erreichbar und wurde bereits in der Vergangenheit erfolgreich als Praxis genutzt. Mit einer attraktiven Lage im Herzen der Innenstadt von Cloppenburg ist dieses Objekt ein idealer Standort, um Patienten, Kunden oder Mandanten aus der Region zu empfangen.
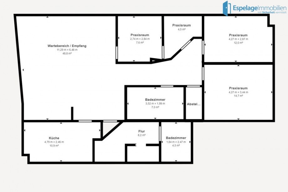
Raumaufteilung und Ausstattung:
Die Gewerbefläche erstreckt sich über eine großzügige Fläche, die sich aktuell in insgesamt 6 Räume unterteilt. Diese bieten genügend Platz für Behandlungszimmer, Büros und Wartebereiche. Zusätzlich stehen 2 Bäder sowie ein separates WC zur Verfügung, was den Anforderungen einer modernen Arztpraxis entspricht. Ein kleiner Abstellraum bietet zusätzlichen Stauraum für medizinische Geräte oder Unterlagen.
Ein weiteres Plus dieser Einheit ist der vorhandene Kellerraum, der zusätzlichen Stauraum bietet. Außerdem ist eine Küche vorhanden, die vom neuen Eigentümer gerne genutzt werden kann.
Zustand und Renovierung:
Die Einheit befindet sich in einem renovierungsbedürftigen Zustand, was dem neuen Eigentümer jedoch die Möglichkeit bietet, die Räumlichkeiten nach eigenen Wünschen und Bedürfnissen zu gestalten. Somit können individuelle Anforderungen an Praxisabläufe und Design optimal berücksichtigt werden.
Besichtigung und Verfügbarkeit:
Haben wir Ihr Interesse geweckt? Gerne stehen wir Ihnen für weitere Informationen zur Verfügung und vereinbaren kurzfristig einen Besichtigungstermin.
Energieausweis:
Art: Energieverbauchskennwert
Gültig bis 07.01.2035
Energieverbrauchskennwert: 85,70kWh/(m²a)
Baujahr lt. Energieausweis: 1984
Wesentlicher Energieträger: Gas
Im Expose erhalten Sie einen 3D-Rundgang
Cloppenburg - Fußgängerzone
Um Ihnen ein vollständiges Exposé zukommen zu lassen benötigen wir Ihre vollständige Anschrift, Ihre Email-Adresse sowie Ihre Telefonnummer. Für weitere Fragen stehen wir Ihnen jederzeit gerne zur Verfügung. Kontaktieren Sie uns einfach per Telefon oder per E-Mail!
*Widerrufsbelehrung*
Widerrufsrecht: Sie können Ihre Vertragserklärung innerhalb von 14 Tagen ohne Angabe von Gründen in Textform (zum Beispiel durch einen Brief, ein Fax oder einer Email) widerrufen. Sofern Ihnen die Widerrufsbelehrung erst nach Vertragsschluss mitgeteilt worden ist, beträgt die Widerrufsfrist einen Monat. Die Frist beginnt nach Erhalt dieser Belehrung in Textform, jedoch nicht vor Vertragsschluss und auch nicht vor Erfüllung unserer Informationspflichten gemäß Artikel 246 § 2 in Verbindung mit § 1 Absatz 1 und 2 EGBGB sowie unserer Pflichten gemäß § 312g Absatz 1 Satz 1 BGB in Verbindung mit Artikel 246 § 3 EGBGB. Zur Wahrung der Widerrufsfrist genügt die rechtzeitige Absendung des Widerrufs.
Der Widerruf ist zu richten an:
Espelage-Immobilien
Braunsberger Str. 7
49661 Cloppenburg
Widerrufsfolgen: Im Falle eines wirksamen Widerrufs sind die beiderseits empfangenen Leistungen zurück zu gewähren und ggf. gezogene Nutzungen (zum Beispiel Zinsen) herauszugeben. Können Sie uns die empfangene Leistung sowie Nutzungen (zum Beispiel Gebrauchsvorteile) nicht oder teilweise nicht oder nur in verschlechtertem Zustand zurückgewähren beziehungsweise herausgeben, müssen Sie uns insoweit Wertersatz leisten. Dies kann dazu führen, dass Sie die vertraglichen Zahlungsverpflichtungen für den Zeitraum bis zum Widerruf gleichwohl erfüllen müssen. Verpflichtungen zur Erstattung von Zahlungen müssen innerhalb von 30 Tagen erfüllt werden. Die Frist beginnt für Sie mit der Absendung Ihrer Widerrufserklärung, für uns mit deren Empfang. Besondere Hinweise Ihr Widerrufsrecht erlischt vorzeitig, wenn der Vertrag von beiden Seiten auf Ihren ausdrücklichen Wunsch vollständig erfüllt ist, bevor Sie Ihr Widerrufsrecht ausgeübt haben.
Ende der Widerrufsbelehrung!
Verbraucherinformation zur Online-Streitbeilegung gemäß Verordnung (EU) Nr. 524/2013:
Im Rahmen der Verordnung über Online-Streitbeilegung zu Verbraucherangelegenheiten steht Ihnen unter https://ec.europa.eu/consumers/odr/ eine Online-Streitbeilegungsplattform der EU-Kommission zur Verfügung.
Ansprechpartner
Telefax: 004932223368931
markus@espelage-immobilien.de
Energieausweis (Verbrauchsausweis)
87,50 kWh / (m²*a) Energieverbrauchskennwert
87,50 kWh / (m²*a) Energieverbrauchskennwert
87,50 kWh / (m²*a) Energieverbrauchskennwert
Weitere Informationen
| Wesentlicher Energieträger | GAS |
| Energieausweis gültig bis | 2035-01-07 |
| Energieausweis Jahrgang | ab dem 1.5.2014 |
| Energieausweis Werteklasse | C |
| Energieausweis Baujahr | 1984 |
| Energieausweis Gebäudeart | Gewerbe |
| Befeuerung | Gas |
Ich bin damit einverstanden, dass mir Karten von Google angezeigt werden. Es gelten die Datenschutzbedingungen von Google (https://policies.google.com/privacy).
Ich bin einverstanden